Oude Nering 66, DRACHTEN

Omschrijving

Beleggingspropositie!

Winkelruimte in verhuurde staat aan de Oude Nering 66 te Drachten.

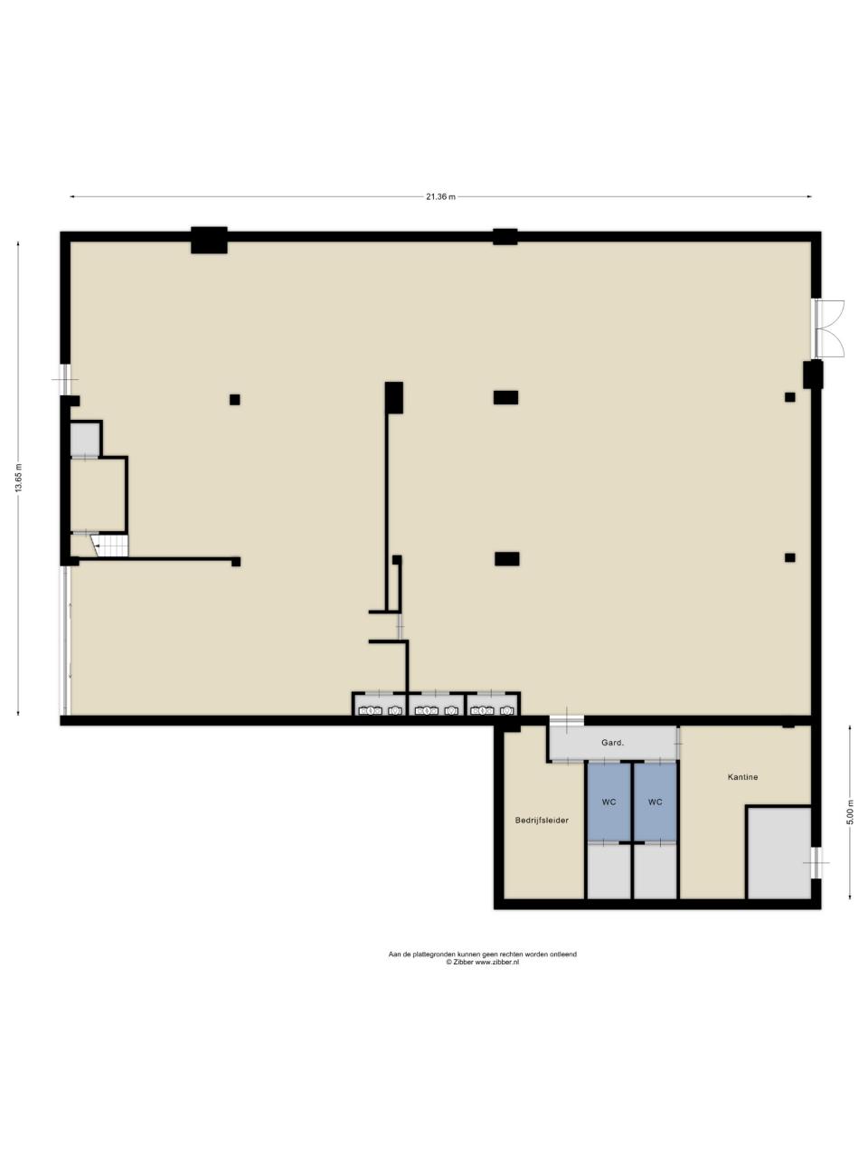
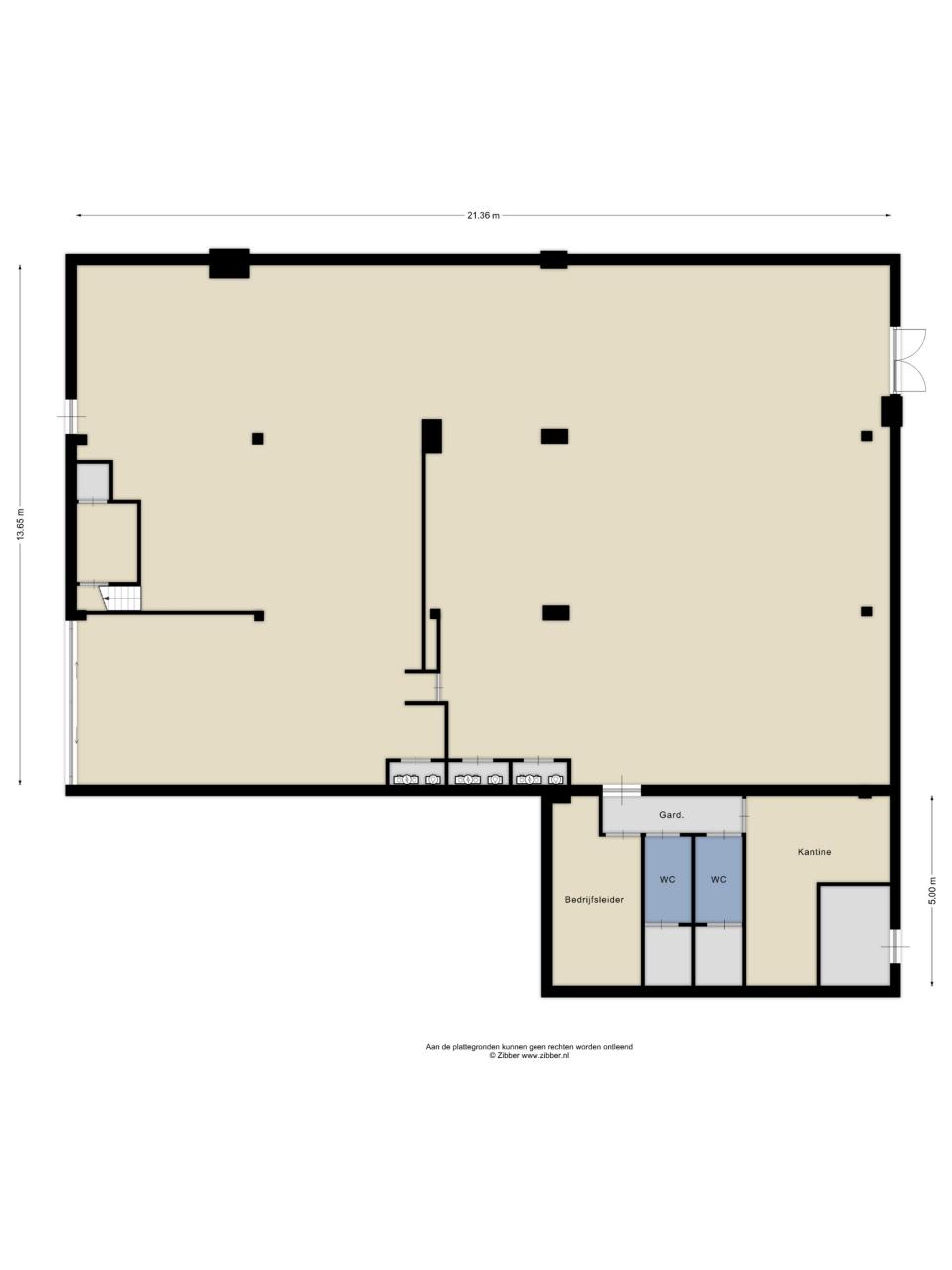
Het betreft een appartementsrecht deel uitmakende van een groter complex. Het object heeft een totaaloppervlakte van 315 m². Er behoort een buitterrein bij het gekochte.

Energielabel B, geldig tot 26-8-2031

Ligging:
Gelegen aan de Oude Nering, een drukke aanrijstraat in en naar het centrum van Drachten. Uitvalswegen richting Heerenveen , Leeuwarden en Groningen zijn op korte afstand te bereiken.

Bestemming:
De voor Centrum aangewezen gronden op deze locatie zijn bestemd voor:
-a. detailhandel en dienstverlening;
-b. bedrijfsactiviteiten, die zijn genoemd in bijlage 1 (Staat van Bedrijfsactiviteiten) onder de categorieën 1 en 2, met uitzondering van geluidszoneringsplichtige inrichtingen, risicovolle inrichtingen en vuurwerkbedrijven;
-c. horecabedrijven categorie 1;
-e. kantoordoeleinden; met een maximum oppervlak van 2.500 m2 per kantoor;
-f. maatschappelijke voorzieningen;
-g. ontspanning en vermaak;

Koopprijs € 245.000,--

Huurstroom totaal € 21.043,92,-- per jaar excl. btw
Huuringangsdatum: 01-01-2015
Huurtermijn: 2+3 en daarna telkens 5 jaar derhalve momenteel tot en met 31 december 2029

Bezichtiging en informatie:
Dijkstra Bedrijfsmakelaardij B.V.
Zuiderdwarsvaart 72
8203 JB Drachten
0512-541400
info@dijkstrabedrijfsmakelaardij.nl

Kenmerken

Objectnaam
Oude Nering 66
Bouwtype
bestaande bouw
Stad
DRACHTEN
Gebied
Centrum
Straatnaam
Oude Nering
Huisnummer
66
Postcode
9203AD
Koop prijs
€245.000,- kosten koper
Hoofdbestemming
winkelruimte
Nevenbestemming
kantoorruimte
Bouwjaar
1962

Locatie

Plattegrond

Download brochure