Marconiweg 9, JOURE

Omschrijving

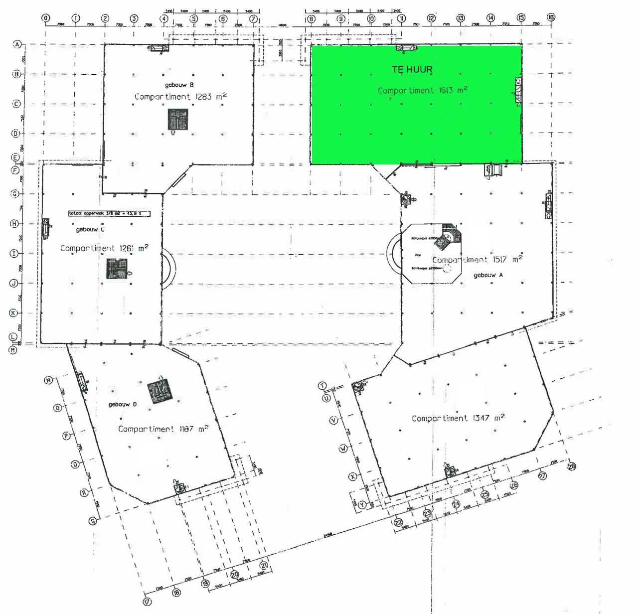
Winkelruimte te huur in Joure!

Op Woonboulevard de Woudfennen bieden wij een ruime winkelunit van ca. 1613 m² op de etage.
Het geheel is bereikbaar middels een gezamenlijke entree. Deze ruimte leent zich uitstekend voor o.a. een keuken, meubel, sanitair, of beddenzaak.

Andere grootschalige zaken komen onder voorwaarden en na goedkeuring gemeente ook in aanmerking.

Ligging:
Aan de rand van Joure en op zichtlocatie aan de A7 richting Sneek gelegen. Op deze kleinschalige woonboulevard is o.a een winkel in Wellness & Outdoorliving, Speelbos Joure en woonwinkel Sellini gevestigd. Het middenterrein biedt voldoende parkeergelegenheid.

Bestemming:
perifere detailhandel in sanitair, keukens en daarmee rechtstreeks samenhangende artikelen en accessoires, onderhoudsmiddelen en/of materialen, meubelen, artikelen ten behoeve van de inrichting van een woning en van de daarmee rechtstreeks samenhangende artikelen en bouwmarkten, ter plaatse van de aanduiding "specifieke vorm van detailhandel - woonboulevard";
een horecabedrijf voorzover gerelateerd aan en ondergeschikt aan het naastgelegen speelparadijs, ter plaatse van de aanduiding "horeca";

Huurprijs: € 25,-- per m² per jaar, excl. btw..
Het betreft hier een ingroeihuur, de huurprijs wordt de eerste jaren niet geïndexeerd maar met
€ 5,-- per m² per jaar verhoogd. Zo kan een ondernemer maximaal gebruik maken van een zeer scherpe huur in de opstartfase.

Bezichtiging en informatie:
Dijkstra Bedrijfsmakelaardij B.V.
Berglaan 14
9203 EG Drachten
0512-541400
Lid NVM-Business
Deelnemer Funda in Business
www.dijkstrabedrijfsmakelaardij.nl

Kenmerken

Objectnaam
Marconiweg 9
Bouwtype
bestaande bouw
Stad
JOURE
Gebied
Wijk 19 Joure
Straatnaam
Marconiweg
Huisnummer
9
Postcode
8501XM
Huur prijs
€25,- per vierkante meter per jaar excl. BTW
Hoofdbestemming
winkelruimte

Locatie

Plattegrond

Plattegrond
Download brochure