Noorderbuurt 16, DRACHTEN

Omschrijving

IN PRIJS VERLAAGD!

Winkelruimte met bovenverdiepingen op toplocatie aan de Noorderbuurt in het centrum van Drachten!

Het geheel bestaat uit 3 bouwlagen, verdeeld als volgt:
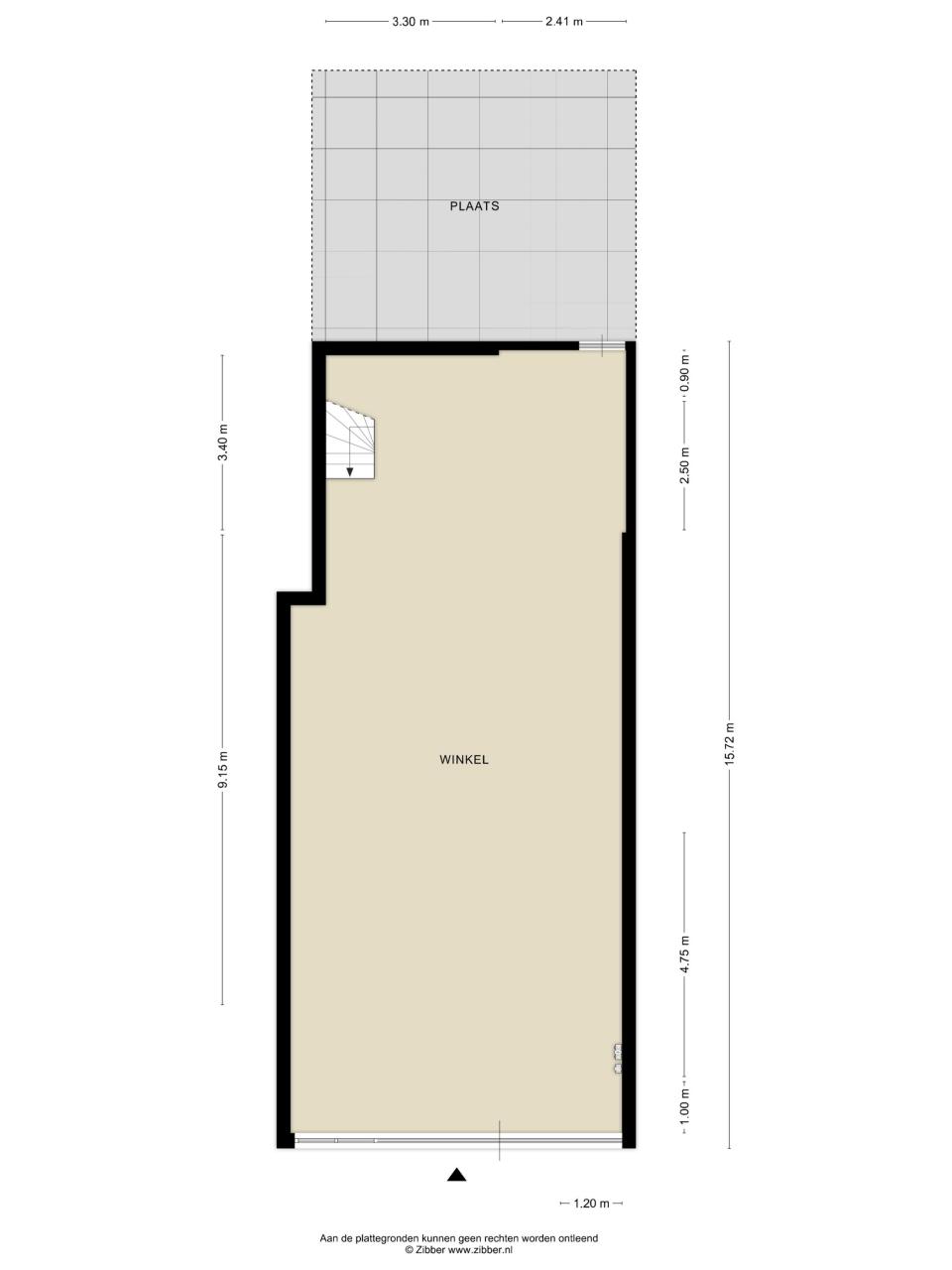
- winkelruimte van ca. 100 m² op de begane grond,
- ca. 55,5 m² op de 1e etage
- ca. 51 m² op de 2e etage

De winkelruimte verkeert in casco staat en de verdiepingen behoeven een grondige renovatie slag. Wonen (na renovatie) op de verdiepingen is mogelijk.

Het geheel heeft op dit moment een energielabel 'E', geldig tot 10-04-2035.

Ligging:
Gelegen in het centrum van Drachten op een drukke locatie aan de Noorderbuurt, en nabij o.a. H&M, Vodafone, Intertoys en Kruidvat. Drachten is de hoofdstad van de gemeente Smallingerland en is na Leeuwarden de grootste plaats van de provincie. Naast plaatselijke ondernemers zijn er in het centrum ook grote retailers gevestigd o.a. H&M, The Sting, Hema, C&A en Media Markt. Het object is goed te bereiken met het openbaar vervoer, de fiets en de auto. Ook zijn de afstanden in het centrum goed lopend af te leggen. Parkeergelegenheid is op steenworp afstand voldoende aanwezig. Uitvalswegen naar Groningen, Heerenveen en Leeuwarden zijn binnen enkele minuten te bereiken.

Bestemming:
De voor Centrum aangewezen gronden zijn bestemd voor:
-a. detailhandel en dienstverlening;
-b. bedrijfsactiviteiten, die zijn genoemd in bijlage 1 (Staat van Bedrijfsactiviteiten) onder de categorieën 1 en 2, met uitzondering van geluidszoneringsplichtige inrichtingen, risicovolle inrichtingen en vuurwerkbedrijven;
-c. horecabedrijven categorie 1;
-e. kantoordoeleinden; met een maximum oppervlak van 2.500 m2 per kantoor;
-f. maatschappelijke voorzieningen;
-g. ontspanning en vermaak;
-h. wonen uitsluitend op de verdieping;

Koopprijs € 349.000,-- k.k.

Bezichtiging en informatie:
Dijkstra Bedrijfsmakelaardij B.V.
Zuiderdwarsvaart 72
9203 JB Drachten
0512-541400

Kenmerken

Objectnaam
Noorderbuurt 16
Bouwtype
bestaande bouw
Stad
DRACHTEN
Gebied
Centrum
Straatnaam
Noorderbuurt
Huisnummer
16
Postcode
9203AM
Koop prijs
€349.000,- kosten koper
Hoofdbestemming
winkelruimte
Nevenbestemming
horeca
Bouwjaar
1966

Locatie

Plattegrond

Begane grond
1e verdieping
2e verdieping
Download brochure