Oranje Nassauplein 17, EERBEEK

Omschrijving

Binnenkort beschikbaar wegens verhuizing van de zittende huurder!

Commerciële ruimte gelegen in het winkelcentrum van Eerbeek. Gelegen aan het Oranje Nassauplein het bruisende hart van Eerbeek bevindt zich deze goed onderhouden winkelruimte c.q. praktijkruimte. De ruimte ik geschikt voor vele doeleinden waarbij de verhuurder graag hierin meedenkt.

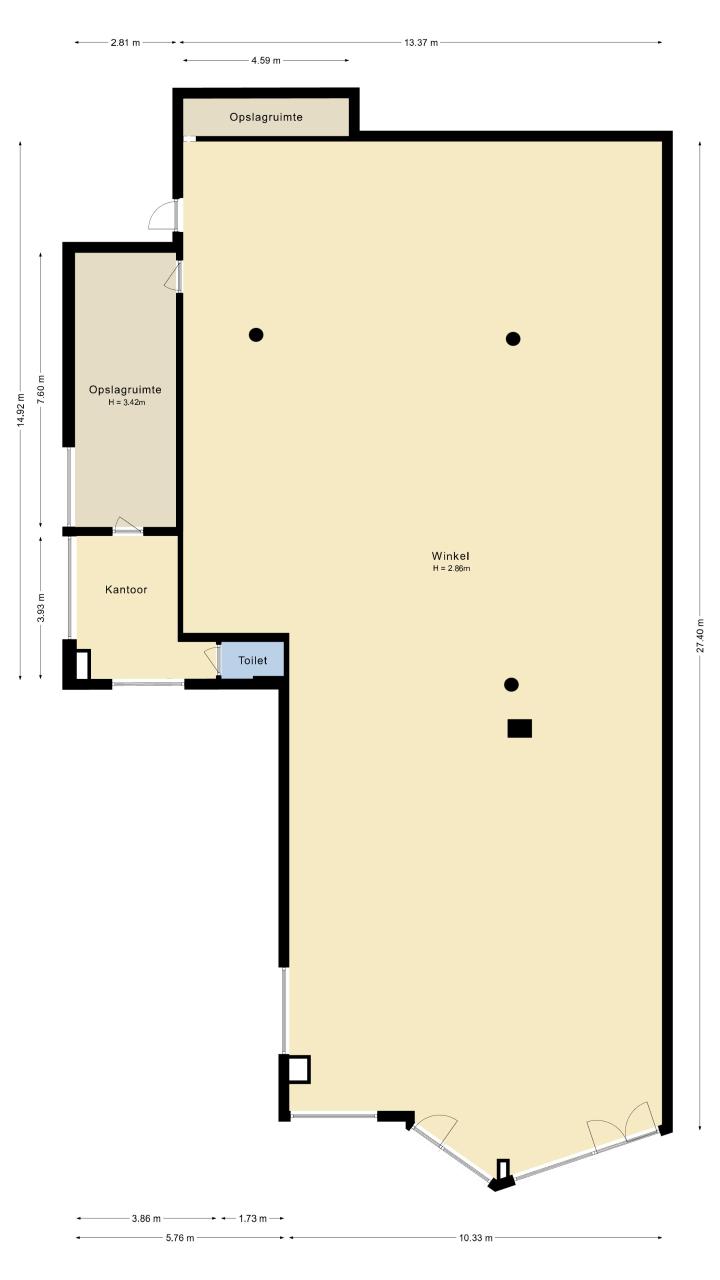
De ruimte heeft een totaal oppervlakte van ca. 425 m². De winkel beschikt over een toilet en systeemplafond met verlichtingsarmaturen.

De ruimte wordt omringd door diverse lokale ondernemers, horecagelegenheden en een wekelijkse markt, wat zorgt voor een constante stroom aan bezoekers. Er is ruime parkeergelegenheid direct voor de deur.

Bestemming:
De voor 'Centrum - 2' aangewezen gronden zijn bestemd voor:
1. woningen alleen zijn toegestaan op de verdiepingen;
2. detailhandel;
3. dienstverlening en maatschappelijke voorzieningen.

Energielabel: A+

Huurprijs € 55.000,-- per jaar excl. btw.

Bezichtiging en informatie:
Dijkstra Bedrijfsmakelaardij B.V.
Zuiderdwarsvaart 72
9203 JB Drachten
0512-541400

Kenmerken

Objectnaam
Oranje Nassauplein 17
Bouwtype
bestaande bouw
Stad
EERBEEK
Gebied
Eerbeek
Straatnaam
Oranje Nassauplein
Huisnummer
17
Postcode
6961CH
Huur prijs
€55.000,- per jaar excl. BTW
Hoofdbestemming
winkelruimte
Nevenbestemming
maatschappelijk vastgoed
Bouwjaar
2007

Locatie

Plattegrond

Download brochure