Swynswei 2D, NIJ BEETS

Omschrijving

Bedrijfswoning met bedrijfsruimte, gelegen op een zicht locatie aan een fraaie waterpartij. Het object is in 1996 gebouwd en het bedrijfsgedeelte wordt sindsdien als wooncentrum gebruikt. De nieuwe eigenaar is voornemens de bedrijfsruimte op te delen en de woning met bedrijfsruimte (nader te bepalen hoe groot) los te verkopen.

De woning is van hoge kwaliteit, heeft een fraai aangelegde tuin en biedt vrij uitzicht over de omliggende landerijen. Het object verkeert in goede staat van onderhoud, waarbij in 2021/2022 de dakbedekking van de bedrijfsruimte is vernieuwd. De woning heeft energielabel B. Er is voldoende parkeergelegenheid op eigen terrein.

Het woonhuis heeft een woonoppervlakte van circa 164 m² en beschikt over een garage van circa 40 m². De bedrijfsruimte op basis van de huidige aanbieding is circa 46 m² waarbij in overleg meer bedrijfsruimte kan worden afgenomen.

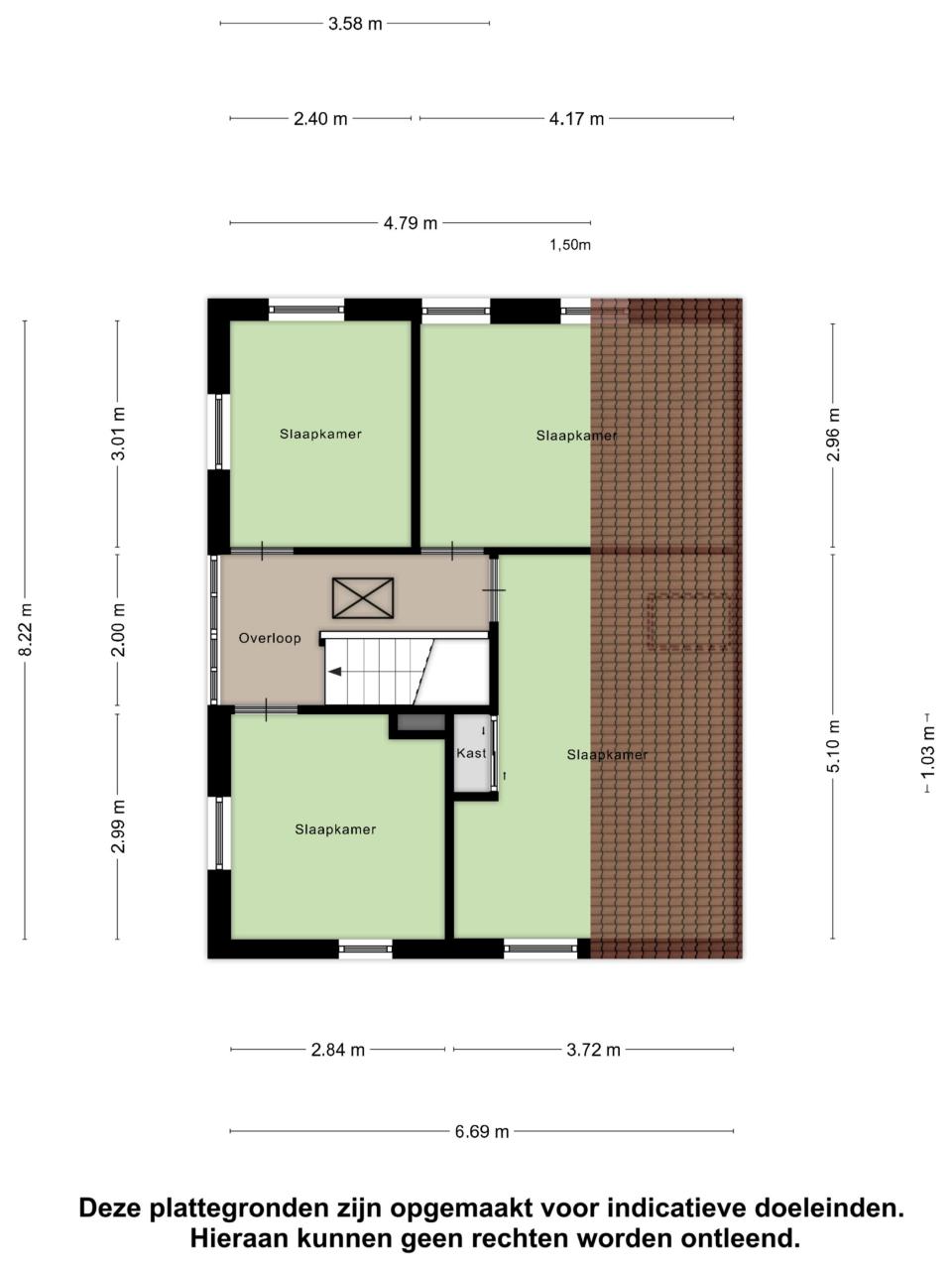
Indeling woonhuis
Begane grond: Entree, hal, toilet met een fonteintje, bijkeuken, slaapkamer, badkamer, royale woonkamer met een open keuken en schuifpui naar de tuin. In de ruime garage is een sauna aanwezig.

Eerste verdieping: Overloop met toegang tot 4 slaapkamers en toegang tot de zolder.

Bestemming
De bestemming betreft 'Enkelbestemming Bedrijventerrein' met de functieaanduidingen 'detailhandel perifeer' en 'bedrijfswoning'. De gronden ter plaatse zijn bestemd voor bedrijven actief in de milieu categorieën 1 tot en met 3.2, dienstverlenende bedrijven en/of dienstverlenende instellingen, perifere detailhandel en voor bedrijfswoningen.

Oppervlakte perceel
Circa 2.880 m², het perceel moet nog worden gesplitst hierdoor kan de metrage nog afwijken.

Verkoper zal het gevelbeeld aanpassen conform de animaties.

Vraagprijs
€ 495.000,= kosten koper.


Bezichtiging en informatie:
Dijkstra Bedrijfsmakelaardij B.V.
Berglaan 14
9203 EG Drachten
0512-541400
Lid NVM- Business
Deelnemer Funda in Business
www.dijkstrabedrijfsmakelaardij.nl

Kenmerken

Objectnaam
Swynswei 2D
Bouwtype
bestaande bouw
Stad
NIJ BEETS
Gebied
Nij Beets
Straatnaam
Swynswei
Huisnummer
2
Postcode
9245HE
Koop prijs
€495.000,- kosten koper
Hoofdbestemming
bedrijfsruimte
Bouwjaar
1996
Bedrijfsruimte oppervlakte
210 m2
In units vanaf
46
Voorzieningen
Betonvloer

Locatie

Plattegrond

Begane grond
1e verdieping
2e verdieping
Download brochure