Berglaan 8, DRACHTEN

Omschrijving

Kantoorruimte op een A-locatie én meteen een zakelijk netwerk!!

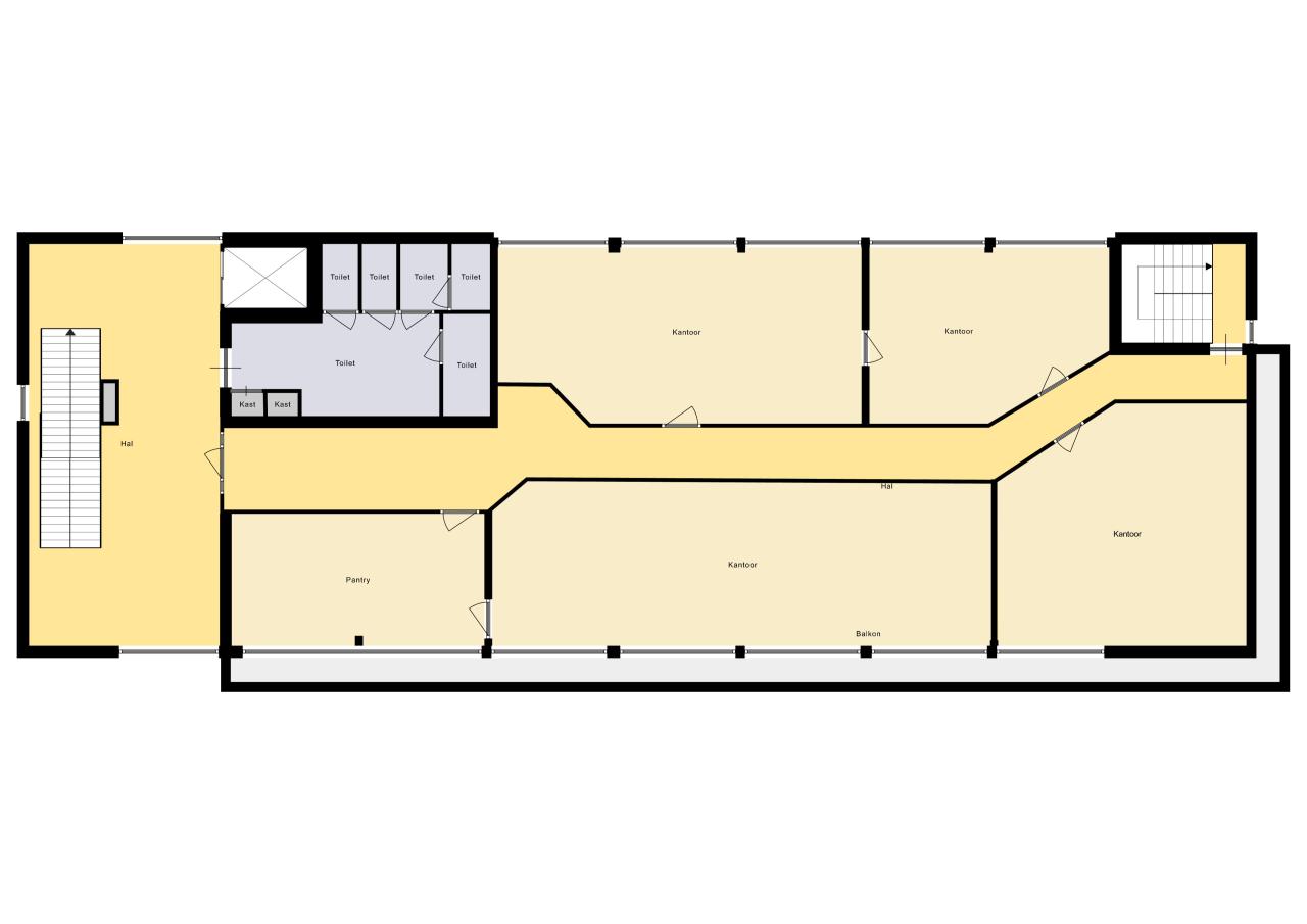
Momenteel bieden wij de gehele 4e etage aan van ca. 221 m² aan. Deze ruimte is verdeeld over 4 kantoorvertrekken. Het gebouw beschikt over een lift. De op deze verdieping aanwezige pantry en toiletten zijn voor eigen gebruik.

Voorzieningen:
- Lift
- Prettige, lichte werkplek met uitzicht op de Lawei en het centrum.
- Representatieve gezamenlijke ruimten: entree, vergader- en ontvangstruimten, pantry en toiletten, kelder met bar

De mogelijkheid bestaat om de volgende voorzieningen af te nemen:
- Schoonmaak
- Koffie- en theevoorziening
- Snelle internetverbinding via een glasvezelnetwerk (Plug and Play)

Op dit moment zijn hier gevestigd:
- Financieel Kompas
- Sinten
- Yvon Notariaat
- DC taleninstituut
- De Talenschool
- De Vries Salarisverwerking
- Argoadvies
- Redbrook
- Talentplatvorm
- Psion
- Moar! community concepts

Zakelijk netwerk:
In deze community zijn veel bedrijven actief in de zakelijke, financieel gerelateerde dienstverlening. De zakelijke en gezellige sfeer van het karakteristieke pand maakt onderling samenwerken mogelijk. Gebruik maken van onderlinge specialismen, aanvullende dienstverlening, kennis delen en 'mei elkoar' meer bereiken. Dat is waar het om draait.

Het kantoorpand beschikt over energielabel C, geldig tot 21-12-2032

Huurprijs € 22.100,-- per jaar excl. btw

Bezichtiging en informatie:
Dijkstra Bedrijfsmakelaardij B.V.
Zuiderdwarsvaart 72
9203 JB Drachten
0512-541400

Kenmerken

Objectnaam
Berglaan 8
Bouwtype
bestaande bouw
Stad
DRACHTEN
Gebied
De Bouwen
Straatnaam
Berglaan
Huisnummer
8
Postcode
9203EG
Huur prijs
€22.100,- per jaar
Hoofdbestemming
kantoorruimte
Bouwjaar
1970
Kantoorruimte aantal verdiepingen
1
Voorzieningen
Inbouwarmaturen, Kabelgoten, Kamerindeling, Liften, Pantry, Systeemplafond, Te openen ramen, Toilet, Verwarming

Locatie

Plattegrond

Download brochure